
ReFa
01
毎日を過ごす場所だからこそ、ストレスを感じさせない機能性と長く居続けたい洗練されたデザインを求めています。
この思いを形にし、美と機能を兼ね備えた「ReFa VITAL ROOM」を創り出しました。
自然と手に取るアイテムに囲まれ、好きなものだけで構成された空間で、日々の美を楽しみながら幸福感に浸ることができます。
非日常が日常となる特別な生活を、ぜひ「ReFa VITAL ROOM」で体験してください。
1階面積
57.96m²
2階面積
53.82m²
延べ床面積
111.78m²(33.81坪)
本体価格
19,800,000円(税込)

360°VRで部屋を見る
AME
02
広々とした縁側が開け放たれると、太陽の光や新鮮な空気、風のささやきが室内に流れ込みます。
家全体をやさしく包む大きな屋根は、室内の光と温度を自然と調和させ、土間の吹き抜けが自然な風を通じて家全体を換気します。
自然と調和した設計が、快適で心地よい生活を支えてくれます。
1階面積
57.96m²
2階面積
53.82m²
延べ床面積
111.78m²(33.81坪)
本体価格
19,800,000円(税込)

360°VRで部屋を見る
1210F
03
1210は広い土地を想定した平屋の3LDKプランで、ゆとりのある構造が特徴。
リビングとつながる大きな掃き出し窓から外に出ると、ダウンライトが埋め込まれた屋根の下、半野外空間を楽しむことができます。
VRのBタイプでは、キッチンからリビングを通して庭の眺めを楽しめます。
リビングは家族が自然に集まるような設計で、フラットな会話が生まれやすい空間となっています。
1階面積
57.96m²
2階面積
53.82m²
延べ床面積
111.78m²(33.81坪)
本体価格
19,800,000円(税込)

360°VRで部屋を見る
510A
04
「シンプルで高品質な白い箱」をコンセプトに、時代を超えて飽きることのない安全なキュービックスタイルを採用。
また、家族を守り続けるために、耐久性や長期の耐震性にも細心の注意を払って設計しています。
外装には、長期間美しさを保つ耐候性と耐久性に優れた材料を使用しています。
1階面積
57.96m²
2階面積
53.82m²
延べ床面積
111.78m²(33.81坪)
本体価格
19,800,000円(税込)

360°VRで部屋を見る
79Aplus
05
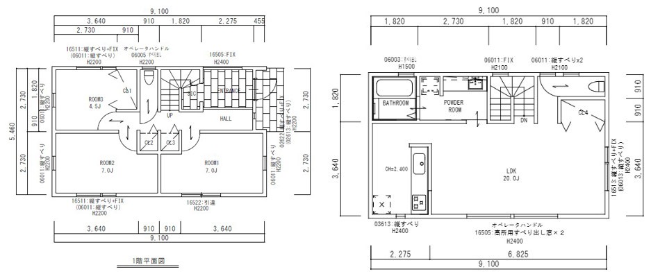
玄関は広々としており、趣味のアイテムも収納できる便利なシューズクローゼットがあります。
リビングには大きな掃き出し窓があり、明るい光が差し込みます。
オーソドックスな長方形のLDKはそのままに、キッチンの隣には6畳の部屋を配置しています。
この部屋は、テレビやソファがある家族の集まるエリアから少し離れているため、書斎や趣味の部屋として活用できます。 ドアを設けずに緩やかなつながりを残すことで、共有スペースとしての機能とプライベート空間のバランスを保っています。
2階には2つの子ども部屋と1つの主寝室があり、階段を上がってすぐのフリースペースには、リモートワークやホームスクーリングに適したデスクを設置しています。
主寝室には広めのバルコニーがあり、ホテルのような雰囲気を演出しています。
各部屋には十分な収納スペースを確保しつつ、1階の洋室と2階のフリースペースが空間利用の幅を広げています。
1階面積
57.96m²
2階面積
53.82m²
延べ床面積
111.78m²(33.81坪)
本体価格
19,800,000円(税込)

360°VRで部屋を見る
56WE
06
「weekend hause.」は、お好みに合わせて内装をカスタマイズできるプランです。
森や湖畔など、自然豊かな場所での週末や休暇を、自分らしく過ごすための提案です。
普段は都心のマンションで生活しながらも、週末は自然の中でお好きなものに囲まれて心地よく過ごす、ホテルやグランピングとは異なる新しいライフスタイルを提供します。
1階面積
57.96m²
2階面積
53.82m²
延べ床面積
111.78m²(33.81坪)
本体価格
19,800,000円(税込)

360°VRで部屋を見る
79A
07
入ってすぐの玄関はゆったりした窓口で、趣味のグッズもおける便利なシューズクロークが。
18帖のリビング。ダイニングは掃き出し窓に向かって大きく開けています。
カウンター付の対面キッチンが更なる開放感。一体感を。パウダールームの洗面打も広々としていて、2階の主寝室には大きなウォークインクローゼットを備えています。
各部屋に十分な収納を確保しながら、使い方自由のフリースペースが空間の使い方の幅を広げます。
1階面積
57.96m²
2階面積
53.82m²
延べ床面積
111.78m²(33.81坪)
本体価格
19,800,000円(税込)

360°VRで部屋を見る
610A
08
ジブンハウス「Fシリーズ(平屋)」は居住空間をワンフロアに集約した理想の住まいです。
外とゆるやかにつながる半屋外空間は日々の暮らしを豊かに彩ります。
「ちょっと贅沢な上質さ」を感じさせる空間になっています。
1階面積
57.96m²
2階面積
53.82m²
延べ床面積
111.78m²(33.81坪)
本体価格
19,800,000円(税込)

360°VRで部屋を見る